
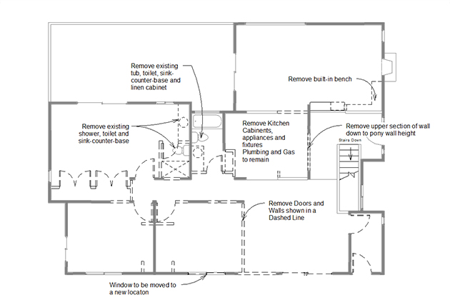
| Walls and features of pre-remodel floor plan that were demolished |
| joy |
| in designing and resolving the |
| floor plan |
| I take |
| For me it is a puzzle with the pieces being use-requirements, cost, structural considerations and how it looks |
| Architect Marc Fredrickson San Diego, CA (619) 343-2651 architect@marcfredrickson.com |